.

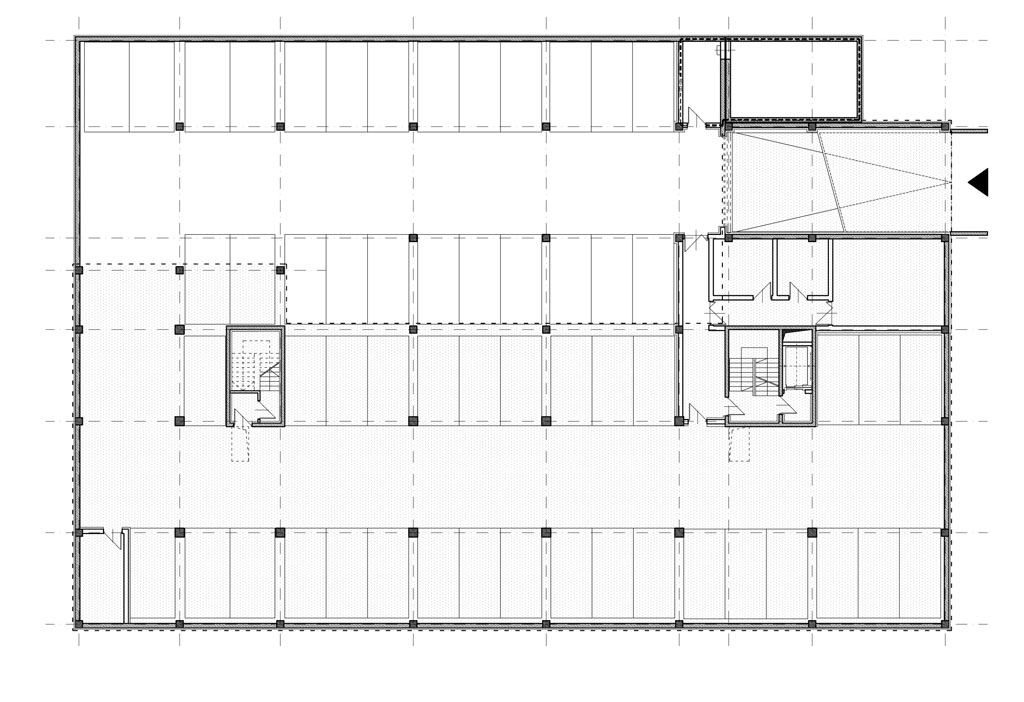
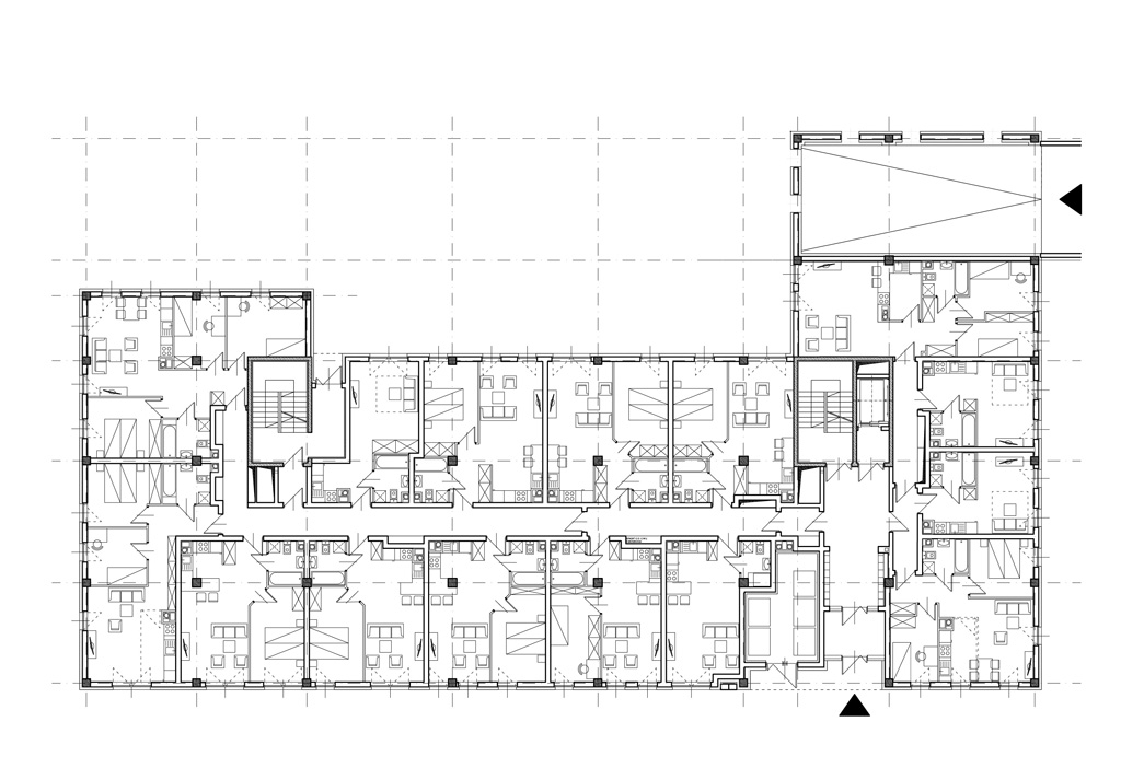
BUDYNEK WIELORODZINNY W KRAKOWIE - segment G

lokalizacja: Kraków
typ: projekt budowlano-wykonawczy
inwestor: MURAPOL PROJEKT SP. Z O. O. 2 SKA
autorzy: Marcin Jagiełło, Janek Juraszczyk
data: projekt 2015, realizacja 2017

pow. zabudowy: 1 020 m2
pow. całkowita: 11 503 m2
pow. użytkowa: 8 055 m2
pow. użytkowa mieszkań: 6 818 m2