NIEPUBLICZNA SZKOŁA PODSTAWOWA W GRODZISKU MAZOWIECKIM
lokalizacja: Grodzisk Mazowiecki
typ: projekt budowlano-wykonawczy
inwestor: prywatny
autorzy: Marcin Jagiełło
data: projekt 2019, realizacja 2020
pow. zabudowy: 1 470 m2
pow. użytkowa: 2 400 m2




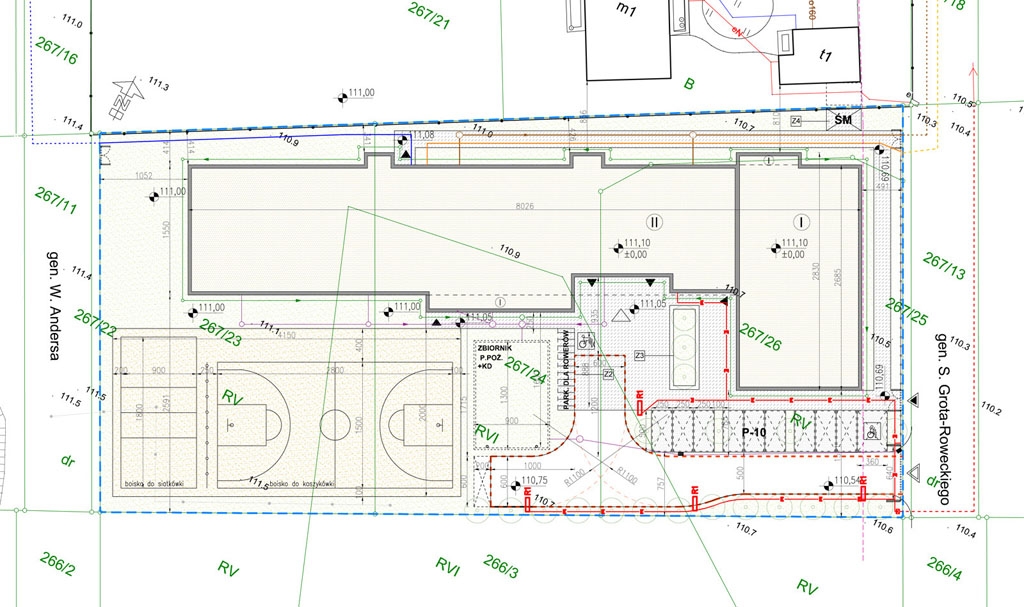
PROJEKT ZAGOSPODAROWANIA TERENU

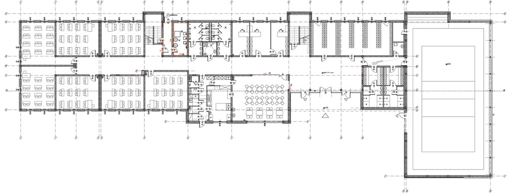
RZUT PARTERU

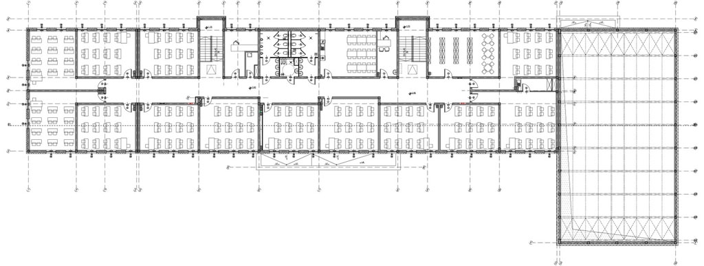
RZUT PIĘTRA

PRZEKRÓJ PODŁUŻNY, ELEWACJA POŁUDNIOWA

ELEWACJE


NIEPUBLICZNA SZKOŁA PODSTAWOWA W GRODZISKU MAZOWIECKIM
lokalizacja: Grodzisk Mazowiecki
typ: projekt budowlano-wykonawczy
inwestor: prywatny
autorzy: Marcin Jagiełło
data: projekt 2019, realizacja 2020
pow. zabudowy: 1 470 m2
pow. użytkowa: 2 400 m2